Georgian One

Size
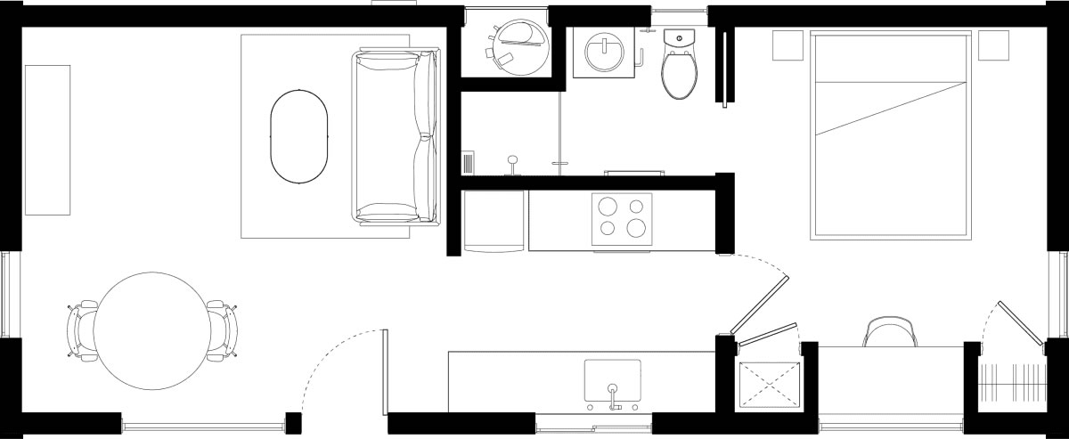
500 sq ft
Building dimensions: 35’-7” W x 14’-7” D x 13’-5” H
Yard space required: 45'-7" W x 26'-7" D
Configuration
1 bedroom with two built-in closets
1 bathroom with shower
Galley kitchen with appliances (dishwasher, garbage disposal, oven, cooktop, range hood)
Notable features
All electric
Large windows for ample natural light
Heat pump air conditioner and heater
Heat pump water heater
Exteriors and interiors come fully finished
HIDE DETAIL →
← SHOW DETAIL

ADU model

Georgian One

Step into the future of compact living with the Hyde-One, a revolution in urban dwelling. Designed to maximize space without compromising style or comfort, the Hyde-One is the epitome of contemporary living for the modern urbanite. This ingeniously crafted unit is a testament to the notion that good things truly do come in small packages.

With its sleek lines and minimalist aesthetic, the Hyde-One seamlessly integrates into any urban landscape, offering a chic and efficient solution to the challenges of city living. Step inside, and you'll find yourself immersed in a world of functionality and sophistication. Every inch of the Hyde-One is meticulously designed to optimize space and enhance livability, from the open-concept layout to the innovative storage solutions. Whether you're a busy professional seeking a cozy haven in the heart of the city or a savvy investor looking to capitalize on the burgeoning demand for compact living spaces, the Hyde-One is the ultimate urban sanctuary, offering convenience, comfort, and style in equal measure.

Made for how you choose to use it.

A large bedroom and bathroom for spacious living.

Galley kitchen, with full-size appliances included.

Signature cathedral ceilings, and optimized windows for natural light and privacy.

Curated options, including folding panoramic doors for indoor-outdoor living.